Автономная канализация Alta Bio 15+ Н в Ярославле
Alta Bio 15+ – это автономная канализационная станция глубокой биохимической очистки хозяйственно-бытовых сточных вод. Подходит для частных домов с проживанием до 15-ти человек. Производительность станции 3,0 кубометр сточной воды в сутки.
Очищенная вода удаляется в напорном режиме при помощи дренажного поплавкового насоса Pedrollo (пр-во Италия) , расположенного в дополнительной камере станции (рассчитано на условия, когда невозможен отвод очищенной воды в самотечном режиме).
Автономная канализация Alta Bio не требует регулярного обслуживания, максимально надежна и комфорта в использовании. При установке данного оборудования пользователь получает канализацию, как в городе.
Ответы на частые вопросы
Документы на оборудование
Описание
Автономная канализация Alta Bio 15+
Alta Bio 15+ – это автономная канализационная станция для глубокой биохимической очистки хозяйственно-бытовых сточных вод. Подходит для частных домов с проживанием до 15-ти человек. Производительность станции 3,0 кубометр сточной воды в сутки.
Очищенная вода удаляется в напорном режиме при помощи дренажного поплавкового насоса Pedrollo (пр-во Италия) , расположенного в дополнительной камере станции (рассчитано на условия, когда невозможен отвод очищенной воды в самотечном режиме).
Автономная канализация Alta Bio не требует регулярного обслуживания, максимально надежна и комфорта в использовании. При установке данного оборудования пользователь получает канализацию, как в городе.
Дополнительные плюсы Alta Bio 15 +
- Нет ограничения по сбросу бытового мусора
- Возможен энергонезависимый режим работы
- Усовершенствованная система подключения питания
В автономной канализации Alta Bio 15 + применяются все три метода очистки стоков:
- механический (в отстойнике осаждаются нерастворимые примеси и начинаются сорбционные процессы);
- биологический (на биофильтре находится активная биопленка, питающаяся загрязнённым стоком и поступающим из окружающей среды кислородом);
- химико-физический (для удаления мелких взвешенных частиц проводится коагуляция осаждающим препаратом Alta Eco Membrana.).
Станции биологической очистки Alta Bio 15+ имеют удобные габаритные размеры. Никакого запаха во время работы! Автономная канализация Alta Bio 15+ подходит для постоянного и временного проживания.
Станциям биологической очистки Alta Bio 15+ достаточно минимального обслуживания. Раз в год откачать накопившейся шлак из отстойника и промыть биофильтры проточной водой.
Вам не подходит станция биологической очистки Alta Bio 15 +?
Выберите другую в разделе автономная канализация.
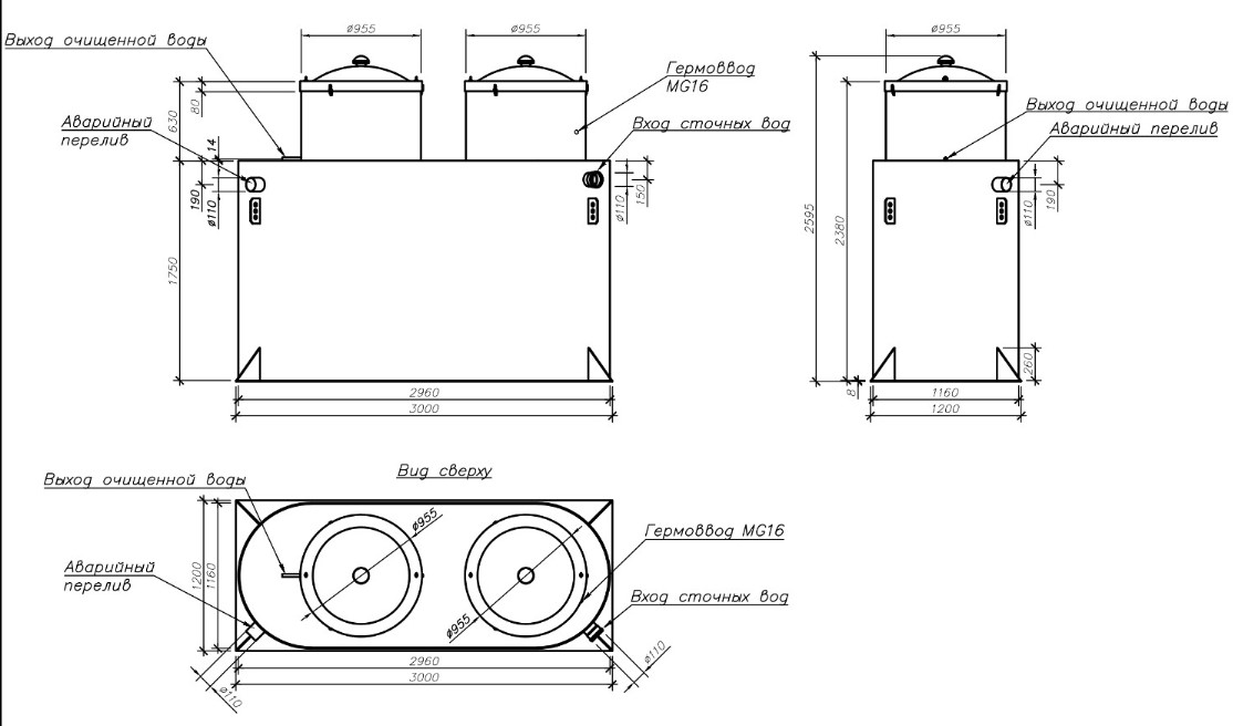
Размеры и габариты автономной канализации Alta Bio 15 +
*Производитель имеет право без предварительного уведомления вносить изменения в изделие, которые не ухудшают его технические характеристики, а являются результатом работ по усовершенствованию его конструкции или технологии производства.Сертификаты и патенты автономной канализации Alta Bio 15 +
Патент на Alta Bio
Декларация соответствия Alta Bio
Экспертное заключение Alta Bio
Сертификат на таймер Alta Bio
Патент на биологическую загрузку для биореактора
Характеристики
|
Транспортные габариты (Длина х Ширина х Высота), мм
|
3000х1200х2450 |
|
Производительность, м³/сут
|
3 |
|
Высота, мм
|
2595 |
|
Количество пользователей до
|
15 |
|
Макс. залповый сброс, л/час
|
750 |
|
Размер основания, мм
|
3000х1200 |
|
Диаметр горловины, мм
|
2х955 |
|
Транспортировочный вес, кг
|
310 |
|
Глубина/диаметр входа, мм
|
675/110 |
|
Глубина/диаметр выхода, мм
|
420/32 |
|
Площадь для установки системы, м²
|
4,1 |
|
Объем земляных работ, м³
|
11,3 |
|
Электрооборудование
|
Погружной, дренажный насос, - 3 шт. |
|
Установочная мощность, кВт
|
0,96 |
|
Энергопотребление, кВТ/ч
|
0,18 |
|
Напряжение, В
|
220 |
|
Рекомендованные параметры подводящего электрокабеля
|
3х1,5 |







